Vigil Home Team

5825 Bridle Way, Madison, WI 53718

$549,900
  • 5825 Bridle Way, Madison, WI 53718 Main Photo

39 Total Photos [Click to View All]

Active
BEDS3 BATHS2 full SQUARE FEET1,653 MLS#2016425
STATUSActive PROPERTY TYPEResidential - Single Family SUBDIVISIONJannah Village SCHOOLSun Prairie

Listing Courtesy of: Loos Custom Homes
Agency Phone: 920-699-3787
IDX logo


Property Description

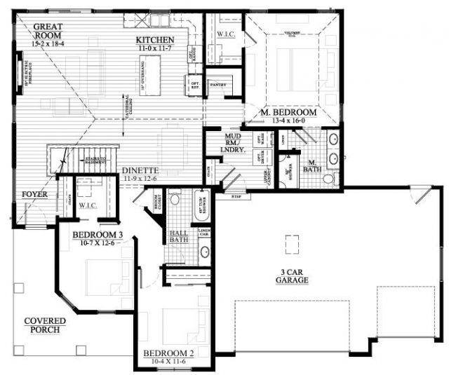
New Construction - Ready in March! Discover the perfect blend of style, comfort, and functionality in the brand-new Stratford model home in Jannah Village. This thoughtfully designed 1,653 sq ft ranch-style home features 3 bedrooms and 2 bathrooms on a .26-acre lot. The kitchen is a standout with quartz countertops and an upgraded lighting package, creating a bright and welcoming space. Enjoy cozy evenings by the electric fireplace and the durability of LVP flooring in the main living areas, paired with LVT flooring in the bathrooms. A spacious 3-car garage adds extra convenience and storage. With modern finishes and quality craftsmanship throughout, this home offers exceptional comfort and style.

5825 Bridle Way | MLS# 2016425

This single family home located at 5825 Bridle Way, Madison, WI 53718 is currently listed for sale with an asking price of $549,900. This property was built in 2026 and has 3 bedrooms and 2 full baths with 1653 sq. ft. Bridle Way is located in the Jannah Village subdivision within the Sun Prairie school district. Search Jannah Village real estate on vigil.starkhomes.com today.

Property Features

Property Type: Residential - Single Family
Basement: Yes
Fuel Type: Natural gas
Garage: 3 car attached
Lot Size:
Stories: 1.0
Taxes: $1,086
Year Built: 2026

Amenities

Vinyl
Aluminum/Steel
Wood
Stone

Feature Descriptions

Basement: Full, Full Size Windows/Exposed, Sump pump, Stubbed for Bathroom, Poured concrete foundatn
Days on Site: 64
Exterior: Vinyl, Aluminum/Steel, Wood, Stone
Garage: 3 car, Attached, Opener
Heating/Cooling: Forced air, Central air
Lot: Corner, Sidewalk, In subdivision
Water/Waste: Municipal sewer, Municipal water

Room Sizes

Primary Bedroom: 13x16 Level M
Bedroom 2: 10x12 Level M
Bedroom 3: 11x13 Level M
Kitchen: 11x25 Level M
Laundry Room: 8x8 Level M
Living/Great Room: 16x18 Level M

Local Schools

High School: Sun Prairie East
School District: Sun Prairie

Listed By / Shown By

Listed By

Agency Name: Loos Custom Homes
Agency Phone: 920-699-3787

Shown By

Agent Name: Vigil Home Team
Agent Phone: (608) 852-7411
Agency Title: Stark Company Realtors

IDX logo

Estimate Your Payment

Estimated Payment

$ 3,166.95 per month $2,916.06 Principal & Interest $90.50 Property Tax $160.39 Homeowner's Insurance

Change Payment Information

%
years/fixed
yearly
yearly (est.)
(Payments are an estimate and may vary by lender)

Login to My Starkhomes

Pixel