Vigil Vigil Home Team

450 Rivers Edge Drive, Kimberly, WI 54136

$79,900
  • 450 Rivers Edge Drive, Kimberly, WI 54136 Main Photo

3 Total Photos [Click to View All]

Active
LOT SIZE 0.510 acres MLS#50288167
STATUSActive PROPERTY TYPELand - Residential SUBDIVISIONRivers Edge SCHOOLKimberly Area

Listing Courtesy of: Resource One Realty, LLC
Agency Phone: 9209835450
IDX logo


Property Description

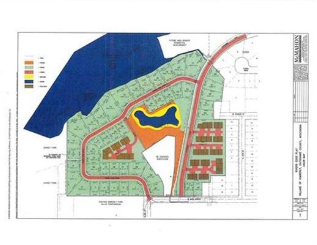
Beautiful views of the Fox River at this prime Kimberly location, part of Kimberly's only waterfront subdivision. Addendum 1 to Offer to Purchase MUST be attached to offer.

450 Rivers Edge Drive | MLS# 50288167

This land located at 450 Rivers Edge Drive, Kimberly, WI 54136 is currently listed for sale with an asking price of $79,900. The property has approximately 0.51 Acres. Rivers Edge Drive is located within the Kimberly Area school district. Search Kimberly real estate on vigil.starkhomes.com today.

Property Features

Property Type: Land - Residential
Lot Size: 0.51 Acres
Taxes: $1,014

Feature Descriptions

Data Source: WIREX_RANW
Days on Site: 722
Utilities: Electricity, Natural Gas
Water/Waste: Sewer(In Street), Municipal Water

Local Schools

School District: Kimberly Area

Listed By / Shown By

Listed By

Agency Name: Resource One Realty, LLC
Agency Phone: 9209835450

Shown By

Agent Name: Vigil Vigil Home Team
Agent Phone: (608) 852-7411
Agency Title: Stark Company Realtors

IDX logo

Estimate Your Payment

Estimated Payment

$ 531.51 per month $423.70 Principal & Interest $84.50 Property Tax $23.30 Homeowner's Insurance

Change Payment Information

%
years/fixed
yearly
yearly (est.)
(Payments are an estimate and may vary by lender)

Login to My Starkhomes

Pixel